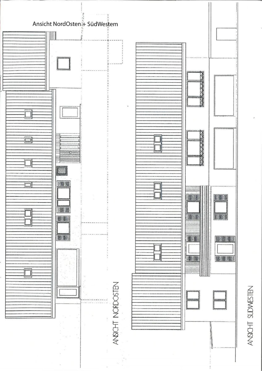
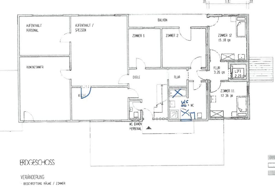
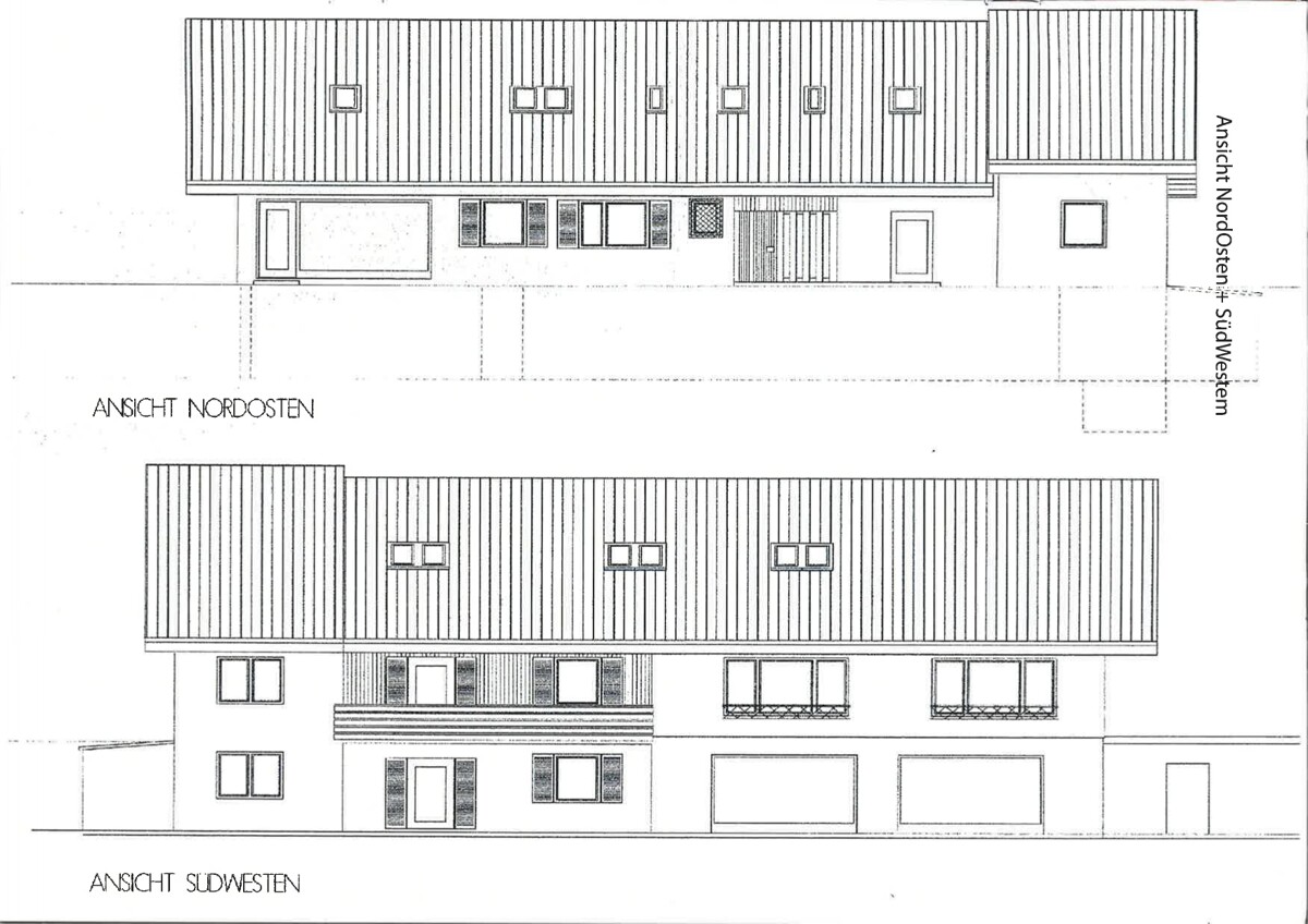
Dieses besondere Mehrfamilienhaus, welches sowohl als reines Wohnhaus als auch als Haus mit Praxis/ Gewerbeeinheit, Seminar- und Tagungshaus, Jugendherberge oder Pflegeheim genutzt werden kann, wurde 1979 (1997 Anbau) in Massivbauweise erbaut und misst ca. 519 m² Wohnfläche, welche sich auf 3 Stockwerken verteilen. Insgesamt stehen 16 Zimmer, 7 Bäder, 2 Küchen, ein Hauswirtschaftsraum und mehrere Abstellkammern zur Verfügung. Das helle Dachgeschoss wird derzeit als separate, offen gestaltete 4-Zimmer-Wohnung genutzt mit ca. 82,7 m² Wohnfläche und verfügt über einen Balkon mit Südausrichtung. Die vielen Fenster sorgen für ein tolles Raumgefühl und lassen die Räume mit viel Tageslicht durchfluten. 2020 wurde das Dach neu gedämmt sowie ein Großteil der Fenster ausgetauscht (dreifachverglaste Kunststofffenster). Zudem sind die Bäder saniert und die Strom-, und Wasserleitungen erneuert worden. Im Erdgeschoss befindet sich eine große, industrielle Edelstahlküche, welche sich hervorragend für größere Gruppen und das Zubereiten vieler Mahlzeiten anbietet. Gegessen werden kann entweder auf der großen Terrasse vor dem Haus, im Garten oder im geräumigen Wohnzimmer. Von hier haben Sie auch Zugang zu dem langen Balkon mit Blick auf die umliegenden Hügel - und orange-goldene Sonnenuntergänge! Im weiteren Verlauf erreichen Sie im Erdgeschoss ein gemütliches Kaminzimmer, ein Badezimmer und mehrere Schlaf- oder Büroräume. Im Untergeschoss befinden sich neben dem Hauswirtschaftsraum und dem Heizraum 6 kleine Apartments/Zimmer, welche beispielsweise als WG-, oder Monteurzimmer vermietet werden können. Von 3 Schlafzimmern haben Sie Zugang zu der Terrasse und dem Garten. Folgende Maßnahmen wurden in den letzten 4 Jahren getätigt: - Neuer Bodenbelag und Malerarbeiten im gesamten Haus
- Austausch und Erneuerung einiger Stromleitungen - Die Ölheizung wurde 2020 erneuert
- Einige Bäder wurden renoviert
- Die Küche im DG wurde neu eingebaut
- Dach neu gedämmt
- Fenster wurden teilweise erneuert und mit elektrischen Rollläden versehen. Die Verkleidung der Fenster ist noch nicht abgeschlossen Es stehen etwa 8 Stelllätze sowie 4 Einzelgaragen zur Verfügung. Derzeit ist das Haus noch vermietet, die Mieter werden Ende des Jahres jedoch ausziehen. Anschließend steht einer Nutzung nach Ihren Wünschen nichts mehr im Wege.
Die direkte Waldrandlage und die atemberaubende Aussicht machen dieses Haus zu einer tollen Gelegenheit, Ihre Pläne wahrwerden zu lassen - wir freuen uns auf Ihre Anfrage!
.jpeg)